
ХД Тип Еуропеан Хоист Елецтриц Једнострани носач
Европски надградни кран са једним носачем је компактан дизајниран и произведен у строгој сагласности са ФЕМ и ДИН стандардом, који са напредном технологијом и лепим дизајном. Подијељени у општи тип и тип суспензије, подржавају употребу европске стандардне електричне дизалице, погодне за руковање материјалима и магацинима, монтажу великих делова и прецизном монтажу и другим местима.
ХД Тип Еуропеан Хоист Елецтриц Једнострани носач
Кратак опис:
Европски надградни кран са једним носачем је компактан дизајниран и произведен у строгој сагласности са ФЕМ и ДИН стандардом, који са напредном технологијом и лепим дизајном. Подијељени у општи тип и тип суспензије, подржавају употребу европске стандардне електричне дизалице, погодне за руковање материјалима и магацинима, монтажу великих делова и прецизном монтажу и другим местима.

Може се широко користити у производњи машина, металургији, нафти, петрификацији, луци, жељезници, цивилној авијацији, храни, производњи папира, грађевинарству, радионици у електронској индустрији, складиштима и другим ситуацијама управљања материјалом, примењивани за руковање материјалима који требају прецизно позиционирање, велике компоненте прецизно стање монтаже.

Детаљне слике:

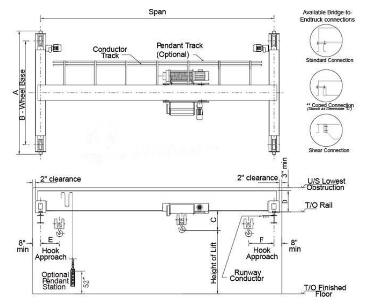
Скица:

Технички параметри:
Спан | м | 7.5 | 10.5 | 13.5 | 16.5 | 19.5 | 22.5 | 25.5 |
Капацитет | т | 1 ~ 12.5т | ||||||
Укупна маса | кг | 1781 ~ 12086 | ||||||
Тежина колица | кг | 405 ~ 740 | ||||||
Мак. Оптерећење кола | кн | 13.5 ~ 90.94 | ||||||
Путна шина | П24 ~ П43 | |||||||
Брзина подизања | м / мин | 0.8 / 5 | 0.8 / 5 | 0.8 / 5 | 0.8 / 5 | 0.8 / 5 | 0.8 / 5 | 0.8 / 5 |
Висина подизања | м | ≥ 6 | ≥ 6 | ≥ 6 | ≥ 6 | ≥ 6 | ≥ 6 | ≥ 6 |
Укупна снага мотора | кв | 4.31 | 4.31 | 4.31 | 4.31 | 4.67 | 4.67 | 4.67 |
Брзина крана | м / мин | 3-30 | 3-30 | 3-30 | 3-30 | 3-30 | 3-30 | 3-30 |
Брзина колица | м / мин | 2-20 | 2-20 | 2-20 | 2-20 | 2-20 | 2-20 | 2-20 |
Радна обавеза | М5 / А5 | |||||||


English
ไทย
українська
Maaya yucateco
bosanski
Việt Nam
Malti
Français
Italiano
Български
România limbi
hrvatski





